Проезд по ним откроют после обеда
В связи с проведением Первенства БМР по лыжероллерам среди лыжников-гонщиков, посвященного Дню города, завтра, 7 сентября, с 7:00 до 13:00 часов будет временно ограничено движение автотранспорта в сторону моста Победы по улице 30 лет Победы от пересечения с улицей Трнавской, а также по одной стороне дороги улицы Трнавской от проспекта Героев до улицы 30 лет Победы.
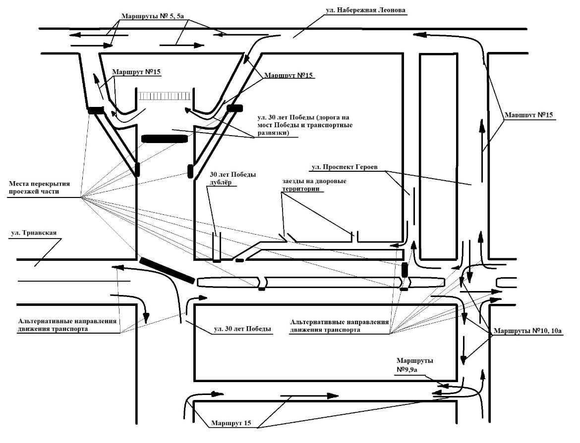
Движение с моста Победы и обратно будет организовано по Набережной Леонова через развязки. Варианты направления движения транспорта представлены на схеме.
На время перекрытия дорог изменятся схемы движения маршрутов общественного транспорта. Маршрут №15 с улицы 30 лет Победы будет поворачивать на проезд Энергетиков, затем на проспект Героев и на Набережную Леонова, а дальше по развязке проедет на мост Победы. Маршруты №10 и 10а, двигаясь по улице Трнавской, будут поворачивать на проспект Героев и на проезд Энергетиков. Маршруты №9 и 9а с проспекта Героев будут поворачивать на проезд Энергетиков. Маршруты №5 и 5а будут следовать по Набережной Леонова.
Отметим, что до 14 часов троллейбусы № 12 и 12 А будут курсировать по маршруту троллейбуса № 5 до остановки «Космос». После 2-х часов дня весь общественный транспорт будет ездить по прежним маршрутам.


